100㎡精装改善大三居,海尚城二期户型的解密
近几年看房的人,都会发现环京市面上都以刚需小户型居多。面对改善人群需求,三湘印象以科技人性化标准带来森林海尚城2期,打造了更舒适、更品质、更科技、更人性、更智慧的100㎡精装三居户型。
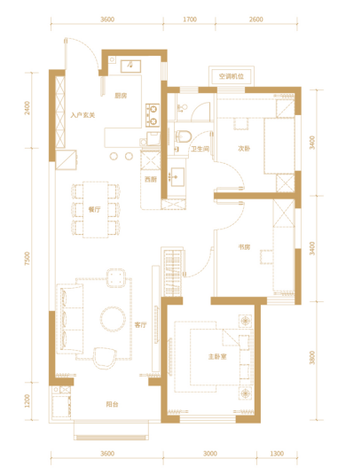
不大不小 100㎡大作为

空间连体大有作为,LDKB空间设计,做到全明通透, 整体40㎡将客厅、餐厅、厨房、厨房、阳台空间一体化连通,从入户开始一览无余,感受11.1米的进深带来的视觉震撼,放眼即到底至阳台,将室内空间的完整性及可变性做到了平衡。
灵活开放式中西双厨房大有作为,不仅是时尚前沿设计中西双厨,功能上满足两代人烹饪喜好,更采用开放式的空间布局,兼融中西两厨房融合之外,以钢化玻璃作为隔断,中厨烹饪时间可合上阻隔油烟,围合出一种通而不透的空间感。亦可打开将空间灵活扁平化,释放40㎡全空间格局,使空间利用率翻倍提升,室内更显奢阔。
7.9米全空间面宽,合理规划动静分区大有作为,生活全屏展开,兼顾动静两相宜,三卧室独立动线,静谧安享,完全与具有社交功能的餐客厅划分明确,让生活从容以对,一边欢聚娱乐,一边独处静憩。

三代家庭 100㎡的海量收纳
100㎡三居能放多少东西?三代家庭的储藏收纳是否够用?
海尚二期分别在 “玄关、厨房、餐厅、卫生间、阳台、”5个不不同功能属性的空间里配置收纳柜,简约轻奢的外观设计,满足绝大多数人的审美。
入户4.3㎡玄关空间,配备2.m*2.4m超大玄关柜,将大衣柜搬到家门口;厨房收纳体系,让所有和厨房有关的锅碗瓢盆和油盐酱醋都有处可归,特制隐形拉手,安全简洁美观。另外餐厅在位于西厨处,总共满足1850L容量,相当于62个登机箱,盛放欢聚时刻所有工具,茶点餐具一秒切换。
再看卫生间可储存2人的日常用品,三面镜柜多角度展现颜值,底柜多层收纳,安放日常美好。接着是家政阳台,设置隐形收纳柜,吸尘器、拖把家政工具可统一收纳,美观又整洁。

内有“心机” 100㎡精装大三居
海尚致力科技100㎡精装改善大三居,采用科技绿色健康住宅新标准,构建你意向不到的品味,做个“科技宅”完全不操心。

全屋配置地送顶回科技新风系统,采用H13医疗级别海帕过滤网,有效过滤空气中毛发、粉尘、细菌;项目应用三湘“太阳能与建筑一体化”专利技术,环保低能耗,绿色生活节省业主电费开支;户户配置独立中央空调,智控保持空间内的恒温恒静;同层排水系统,隔离下水道污染源的问题,保证家中无水声的噪音影响;同时采用高密闭门窗系统,通过三玻两腔高密闭工艺,静音隔热,保温防尘。
除此之外,海尚2期新品健康住宅,增配直饮水系统,改善全家饮水需求。
相关文章:
相关推荐:
网友评论:






